
發表時間:2022-04-08 14:48 瀏覽次數:382
江蘇鉑睿測控科技有限公司,位于江蘇無錫市錫山東港工業園。公司致力于工業儀器儀表的生產銷售、自動化系統的開發研制、及工程施工配套于一體的綜合性企業。公司產品以現場壓力、溫度、液位、流量儀表為主體,已通過IS09001質量體系認證。并取得了多種儀表計量生產許可證。產品廣泛應用于石油、化工、電力、冶金、水利、制藥、環保等行業。 公司堅持“質量為本、科技先導、服務至上”的企業宗旨。 堅持“團結、進取、務實、奉獻”的管理理念。在運營中憑借良好的信譽及優等的服務與各地區的工業生產廠商建立了長期穩定的商業貿易伙伴關系。所有產品廠家直銷,為客戶單位節約成本,保質保量,確保產品在儀表行業內的良好信譽。歡迎登錄我司網站 www.wxbrck.com,查閱產品資料,咨詢洽談。
www.wxbrck.com,查閱產品資料,咨詢洽談。


| 測量介質 | 液體 | 
| 測量范圍 | 400mm~15000mm | 
| 測量基本誤差 | ±10mm | 
| 工作介質溫度 | -50℃~110℃;高溫50℃~300℃ | 
| 工作介質壓力 | 0.1MPa~4.0MPa | 
| 工作介質密度 | 0.6g/cm3~1.7g/cm3 | 
| 工作介質粘度 | ≤0.25Pas | 
| 接口法蘭規格 | 按客戶要求 | 
| 供給電源 | 24V.DC | 
| 輸出信號 | (4~20)mA.DC(二線制) | 
| 負載電阻 | 600Ω | 
| 環境溫度 | -25℃~ +60℃ | 
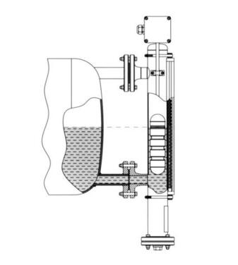
帶遠傳磁性浮子液位計 應用: 隨著市場需求的變化,公司產品也在不斷地實現質量技術的升級和生產工藝的改進、拓寬本液位計的應用領域及適用范圍。另外,本液位計輸出信號多樣,實現遠距離的液位指示、檢測、控制和記錄。 本液位計幾乎可以適用于各種工業自動化過程控制中的液位測量與控制。可以廣泛運用于石油加工、市政、食品加工、化工、水處理、制藥、電力、造紙、冶金、船舶和鍋爐等領域中的液位測量、控制與監測。
帶遠傳磁性浮子液位計安裝: 1、儀表已經經過我公司嚴格的試壓、模擬運行等測試。零位已經遷至實際零位,用戶直接安裝使用。 2、安裝時需注意主導管內切勿進入導磁雜質,以免影響浮球與顯示板的磁耦合性能。 3、安裝完成后需進行一次磁柱的矯正,具體過程見使用說明書。
選型:
| HZ-UHZ | 帶遠傳磁性浮子液位計 | |||||
| 代碼 | 安裝方式 | |||||
| 2 | 側裝式 | |||||
| 3 | 頂裝式 | |||||
| 代碼 | 主體材質 | |||||
| 1 | ABS | |||||
| 2 | 304 | |||||
| 3 | 316L | |||||
| 4 | 304+PTFE | |||||
| 代碼 | 公稱壓力 | |||||
| 1 | 0.6Mpa(僅適用于主體材質為ABS時) | |||||
| 2 | 1.6Mpa  | |||||
| 3 | 2.5Mpa | |||||
| 4 | 4.0Mpa | |||||
| 5 | 大于4.0MPa | |||||
| 代碼 | 輸出信號 | |||||
| 1 | 基本型 | |||||
| 2 | 帶上、下限開關輸出 | |||||
| 3 | 帶電遠傳(0~10mA輸出,220V,AC) | |||||
| 4 | 帶電遠傳(4~20mA輸出,24V,AC) | |||||
| 5 | 帶防爆型遠傳(4~20mA輸出,24V,AC) | |||||
| 安裝間距(測量范圍) | ||||||
| L1 | 安裝深度(頂裝式)(0~4000mm任選) | |||||
| 介質密度g/cm3 | ||||||